LOT 3 : Appartement de 3,5 pièces avec balcon et terrasse

Échandens
Description
Référence:
KI-135
Pièces:
3.5
Nb de salles de bain: 2
Nb de chambres:
2
Surfaces:
97 m2
Ameublement:
rent
Vue:
rent
Style:
rent
État:
rent
Parking:
rent
Parking obligatoire:
rent
Charges:
rent
Charges individuelles incluses:
rent
Description
Située dans un cadre verdoyant et paisible à Echandens, La Ferme des Rosiers est une promotion intimiste qui conjugue avec élégance le charme de l’ancien et le confort contemporain. Ce projet à échelle humaine comprend six logements uniques, du studio au spacieux appartement de 4.5 pièces, tous dotés d’un espace extérieur privatif, sous forme de jardin ou de terrasse.

L’architecture s’inspire de l’âme rurale de la bâtisse d’origine, préservant son caractère authentique, tandis que les aménagements intérieurs offrent des volumes lumineux et des finitions actuelles. Les matériaux sélectionnés avec soin apportent une touche de modernité tout en respectant l’identité du lieu, créant une atmosphère chaleureuse et harmonieuse. 

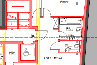
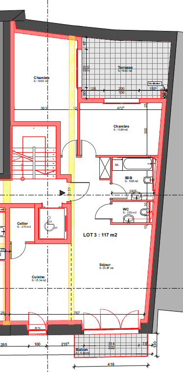
Situé au 1er étage, ce bel appartement de 97 m² séduit par ses volumes généreux et son agencement fonctionnel. Implanté au cœur d’Échandens, dans un quartier résidentiel particulièrement calme, il offre un cadre de vie idéal, alliant tranquillité et proximité immédiate des commodités.

L’espace de vie se compose d’une cuisine ouverte donnant sur un vaste séjour lumineux, avec un accès direct aux espaces extérieurs, comprenant un balcon de 6 m² ainsi qu’une agréable terrasse de 16 m², parfaits pour profiter des beaux jours.

L’appartement dispose de deux chambres à coucher, d’une salle de bains, ainsi que d’un WC visiteurs, garantissant confort et praticité au quotidien. Les finitions sont entièrement personnalisables (cuisine, sanitaires, sols, etc.), vous permettant de créer un intérieur à votre image.

Une place de parc extérieure, proposée en sus au prix de CHF 25'000.–, complète ce bien.

La livraison est prévue pour l’hiver 2027, offrant une opportunité idéale pour anticiper sereinement votre futur lieu de vie.

Un bien rare sur le marché, idéal pour celles et ceux à la recherche d’un logement moderne, personnalisable et parfaitement situé.
Adresse
1026 Échandens
Sur la carte
CHF 1'150'000.-
Agent immobilier
Romain Zumbach
Contactez le courtier
Biens similaires

LAUSANNE

GENÈVE

CRANS-MONTANA