Située dans un cadre verdoyant et paisible à Echandens, La Ferme des Rosiers est une promotion intimiste qui conjugue avec élégance le charme de l’ancien et le confort contemporain. Ce projet à échelle humaine comprend six logements uniques, du studio au spacieux appartement de 4.5 pièces, tous dotés d’un espace extérieur privatif, sous forme de jardin ou de terrasse.
L’architecture s’inspire de l’âme rurale de la bâtisse d’origine, préservant son caractère authentique, tandis que les aménagements intérieurs offrent des volumes lumineux et des finitions actuelles. Les matériaux sélectionnés avec soin apportent une touche de modernité tout en respectant l’identité du lieu, créant une atmosphère chaleureuse et harmonieuse.
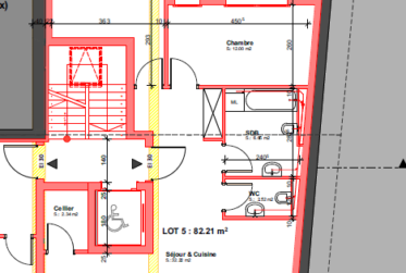
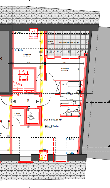
Situé au 2ᵉ étage, ce bel appartement de 85 m² bénéficie d’un emplacement idéal au centre d’Échandens, dans un quartier calme et résidentiel, à proximité immédiate des commodités.
L’agencement intérieur offre un espace de vie généreux et lumineux, composé d’une cuisine ouverte sur un spacieux séjour, avec accès à un balcon de 3 m², parfait pour profiter de l’extérieur.
L’appartement comprend deux chambres à coucher, une salle de bains, ainsi qu’un WC visiteurs, assurant un confort optimal au quotidien. Les finitions sont entièrement personnalisables (cuisine, sanitaires, sols, etc.), vous permettant de concevoir un intérieur à votre image.
Une place de parc extérieure, proposée en sus au prix de CHF 25'000.–, complète ce bien.
La livraison est prévue pour l’hiver 2027, offrant une belle opportunité d’anticiper votre futur logement dans un cadre de vie agréable et recherché.
Un bien de qualité, idéal pour une résidence principale ou un investissement durable.